Deutscher Bauherrpreis 1998
Goldenes Haus 1999
Privater Bauherr
1995
Stefan Wagner, Franz Wanner, Peter Fretschner, Matthias Herbrich
Prof. Christoph Valentien, Prof. Hermann Brenner
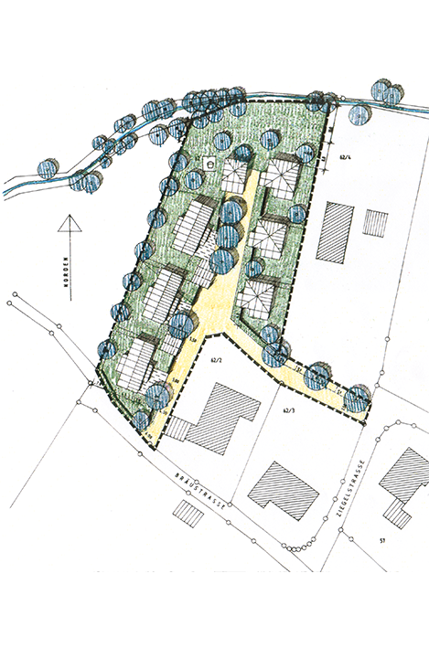
Der Ortsrand einer kleinen niederbayerischen Gemeinde wird durch 7 Einfamilienhäuser aus Holz abgerundet. 2 Haustypen unterschiedlicher Größe bilden eine Hausgruppe in der sich gemeinschaftliches Wohnen einstellen kann. Der besonderen topographischen Situation wurde Rechnung getragen indem die Häuser aufgestelzt sind, wodurch die Landschaft darunter durchfließen kann.







