Architektouren 2017
Häuser des Jahres 2017
Privater Bauherr
2016
Nepomuk Wagner, Stefan Wagner, Elisabeth Löffler
Christian Wagner
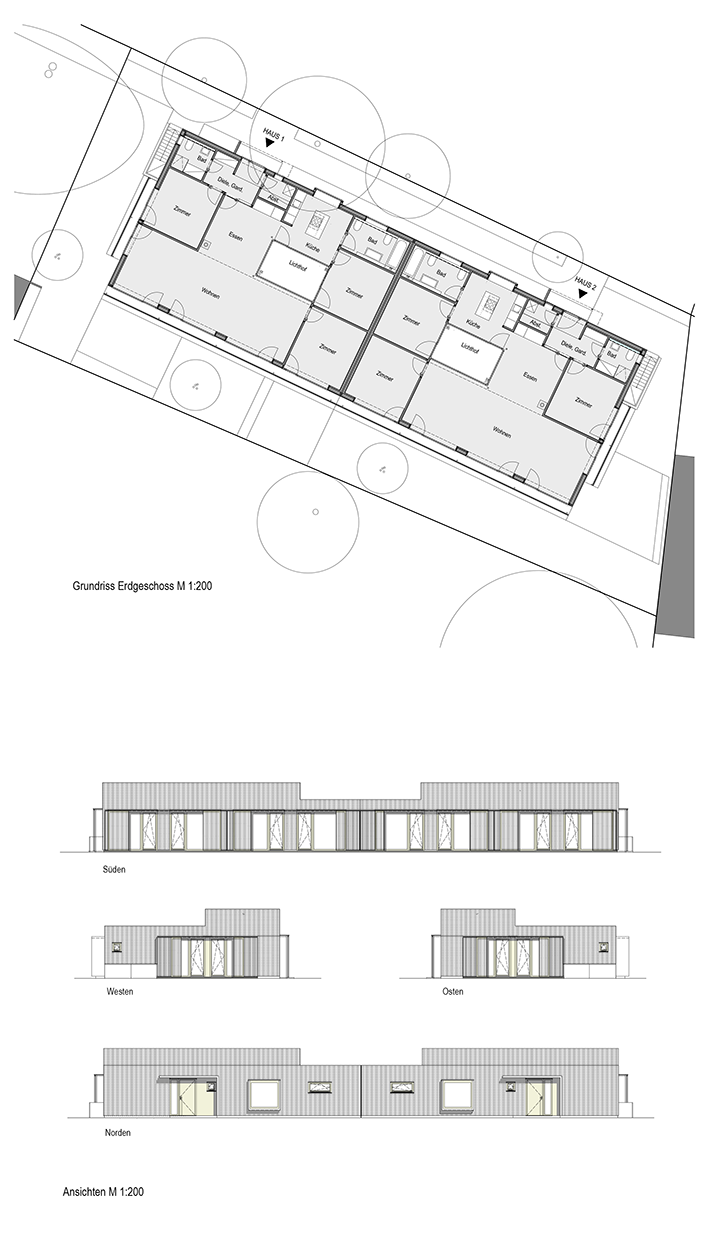
Auf schmalem Grundstück am Ortsrand eines Dorfgebiets enstand in 2. Reihe ein Doppelhaus in erdgeschossiger Bauweise. Der Grundtypus mit 10/15m wurde gedoppelt und gespiegelt. Um einen mittigen Lichthof gruppiert sich der offene Grundriss. Auf Hierarchien und Raumwidmungen wurde bewusst verzichtet um eine Flexibilität in der Nutzung zu gewährleisten. Bei Entfernung nichttragender Zwischenwände lässt sich ein Großraum-Kontinuum herstellen. Lediglich eine schmale Raumachse an der Nordseite enthält sanitärabhängige Räume wie Bad, Küche, Nasszelle und Hauswirtschaftsraum. Die Wohnraumachse im Süden ist um 1m höher als die übrigen Räume, sodass sich eine Höhenstaffelung im ansonsten gleichmäßig flachen Gesamtkomplex ergibt. Die Abstands-flächenregelung der BayBO hat hier maßgeblichen Einfluss.












