Architektouren 2015
Privater Bauherr
2015
Nepomuk Wagner, Stefan Wagner, Elisabeth Löffler,
Judith Müller
Christian Wagner
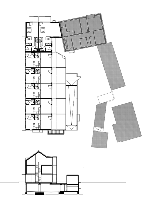
3-geschossige Stadthäuser ersetzen an einer stark befahrenen Durchgangsstraße Teile eines ehemaligen landwirtschaftlichen Anwesens. Eingänge und untergeordnete Räume schirmen den straßenseitigen Lärm ab und ermöglichen ein ruhiges Wohnen in Blickrichtung Grünraum Isar. Wohnungsgrundrisse sind über 3 Geschosse gestapelt und verfügen über ein Gartenhöfchen im Erdgeschoss sowie 2 Loggien in den Obergeschossen mit Ausblick ins Grüne. Eine Tiefgarage und Gemeinschaftsein- richtungen vervollständigen die Bedürfnisse nach ganzheitlichem Wohnen.










