Privater Bauherr
2014
Nepomuk Wagner, Stefan Wagner, Elisabeth Löffler,
Judith Müller
Christian Wagner
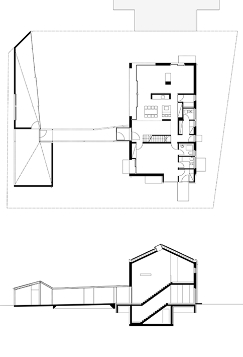
Im Rahmen eines qualifizierten Bebauungsplans mit gestalterischen Festsetzungen entsteht ein Einfamilienhaus mit Einliegerwohnung als 2-Generationenhaus. Ein Nebengebäude entlang der Erschließungsstraße mit Carport und Freizeiteinrichtungen schafft einen Binnenraum und schirmt negative Einflüsse der südlichen Nachbarschaft wirksam ab. Massivbau mit plastischer Ausformung der Außenhülle durch Loggien, Terrasse und Erker. Hoher technischer Standard, niedriger Energiebedarf.






